Return to Home Designs
Modern single-story house with white siding, a gray metal roof, and a two-car garage. The front yard features landscaped bushes, a stone pathway, and exterior lighting.
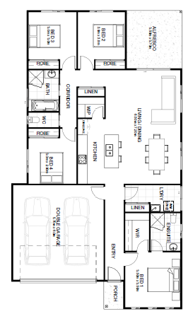
Architectural floor plan of a single-story house featuring a double garage, entry porch, three bedrooms with robes, two bathrooms, a kitchen, a laundry room, linen closet, living/dining area, and an alfresco area.

Home Design

Ninderry 182

Home design summary with icons for bedrooms, bathrooms, garage, and living room. Information includes: 4 bedrooms, 2 bathrooms, 2 garages, 1 living area. Area details: living - 131.11m², garage - 35.89m², porch - 2.15m², alfresco - 12.85m², total size - 182.00m². House dimensions: width - 11.2m, length - 18.9m, fits lot width - 12.5m.

Welcome to The Ninderry

At Balai Homes, we build what matters to you. Introducing The Ninderry—a beautifully designed single-storey home tailored for families who value comfort, connection, and easy coastal living. Thoughtfully planned with open spaces, functional flow, and quality finishes, The Ninderry is ideal for relaxed Sunshine Coast lifestyles.

Designed for Modern Living

Step into a bright and welcoming Entry, where the private Master Suite is positioned at the front of the home for peace and quiet. This retreat features a spacious Walk-In Robe (WIR) and a well-appointed Ensuite, offering both comfort and separation from the rest of the home.

At the centre, an open-plan Kitchen, Living, and Dining area creates the social heart of the home—perfect for everyday family moments or entertaining guests. The Kitchen includes a large island bench, a generous Walk-In Pantry, and direct access to a covered Alfresco area, ideal for enjoying the Sunshine Coast climate year-round.

Room for Everyone

The rear of the home includes three additional Bedrooms, each with built-in robes, surrounding a central Bathroom, separate WC, and a practical Laundry. Additional Linen storage adds to the home’s everyday functionality, ensuring it’s as practical as it is stylish.

Whether it’s hosting guests, creating work-from-home spaces, or giving children their own zones to grow and thrive, The Ninderry is designed to adapt to your lifestyle today—and tomorrow.

Thoughtful Design That Works

At Balai Homes, we believe homes should be as functional as they are beautiful. The Ninderry is a perfect example of our commitment to quality craftsmanship and practical, liveable design. As Sunshine Coast custom builders, we focus on creating spaces that suit real families and real lives—because we build what matters to you.

Contact Balai Homes today to discover The Ninderry—comfortable, practical coastal living, built for the way you live.